Benutzer:  Gast     Thursday, 25.12.2025 10:57
Benutzer online:
Gäste: 1
Mitglieder: 0
Aktuell: 1
Maximal: 51
www.gotthardmodell.ch - Home
Die Gotthard Nordrampe
Du bist hier:  Anlagen ► Neue Anlage ► Planung ► Signalbrücken

Signalbrücken

 

werden auf der Gotthardlinie in Massen verwendet (das Budget lässt grüssen). Auf dem geplanten Ausschnitt der Gotthard Nordrampe werden es nach ersten Berechnungen deren 11 Stück sein. Einziger mir bekannter Hersteller (ausser dem Eigenbau natürlich) ist MicroScale. Nachdem nun der Signalisierungsvorschlag von MicroScale eingetroffen ist und dieser auf den vorhandenen Gleisplan umgesetzt wurde stellte ich plötzlich fest, dass der Parallelgleisabstand von PECO und derjenige des MicroScale-Modells sich gewaltig unterscheiden.

Quelle: www.microscale.ch
Schematische Darstellung der Signalbrücke von MicroScale, Parallelgleisabstand 35mm

Der von mir verwendete PECO Standard Parallelgleisabstand beträgt aber nur 26.5mm - umgesetzt auf diese Signalbrücke ergibt sich dann folgendes Bild:

Signalbrücke, Parallelgleisabstand 26.5mm

Das mittlere Signal ragt ziemlich fest in das Lichtraumprofil beider Spuren und auf den Aussenseiten ist überproportional viel Platz vorhanden - etwas stimmt hier nicht - aber was? Ist es unter Umständen sogar der PECO Parallelgleisabstand? Doch auch die 35mm von MicroScale scheinen eher an den Minitrix / Fleischmann / Roco / Arnold Standard als an das Vorbild angelehnt zu sein.

Verschiebt man das Lichtraumprofil soweit nach aussen bis der mittlere Signalkorb frei wird ergibt dies einen Abstand von genau 32mm, was dann so aussieht:

Signalbrücke, Parallelgleisabstand 32mm

Eine Recherche im Internet bringt folgendes zu Tage:

Quelle: SBB

Bei einem Parallelgleisabstand von 3600mm im Vorbild ergibt dies auf den Massstab 1:160 heruntergerechnet einen solchen von 22.5mm - also ist auch der PECO Gleisabstand eigentlich zu gross bzw. ein Zugeständnis an die Modellbahnhersteller. Doch was nun? Auf 35mm Gleisabstand möchte ich nicht gehen und auch Verbreiterungen im Bereich der Signalbrücken scheinen mir nicht das richtige Mittel. Ich werde also mit MicroScale Kontakt aufnehmen und das Problem besprechen; diese Firma ist bekannt dafür, dass sie Kundenwünsche prompt und meistens auch ohne Mehrpreis erfüllen.

Die Antwort von MicroScale ist prompt eingetroffen und bestätigt meine Vorstellung:
Genau dieselben Ueberlegungen haben wir seinerzeit beim Design auch gemacht, u.a. da die Mehrzahl unserer Kunden Trix/Fleischmann/(Arnold) einsetzen. Der Entwurf von Modellen ist immer eine Gratwanderung zwischen Optik, Machbarkeit und Einsatz auf Anlagen. Unsere Ueberlegung ersehen Sie aus der ersten Grafik in Ihrem Mail: wir wollten unseren Kunden auch kleinere Radien mitsamt Fahrleitung "zugestehen".

Und die vorgeschlagene Lösung überzeugt auch:
Es ist eine leicht erhöhte Version möglich, bei der die Masten ca. 3 mm höher sind. Dadurch wäre ein Gleisabstand von 30 oder sogar darunter möglich, da der mittlere Korb nicht mehr ins Fahrzeugprofil hineinreicht. Gleichzeitig könnte der Abstand zwischen den Masten etwas reduziert werden
Diese Variante könnten wir ohne weiteres ins Sortiment aufnehmen. Wenn Sie uns eine entsprechend geänderte Skizze mit den Hauptabmessungen liefern können, wäre dies optimal.

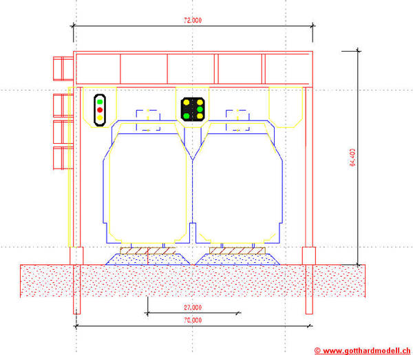
So habe ich, basierend auf dem ursprünglichen Modell und meinen Bedürfnissen, eine Variante mit 27mm Parallelgleisabstand entworfen; jetzt muss ich noch auf das Eintreffen der Original SBB Pläne warten, damit ich meine Variante mit dem Vorbild abgleichen kann und dann ab zu MicroScale.

Signalbrücke, Parallelgleisabstand 27mm

Heute sind die Originalpläne der Signalbrücken Pfaffensprung (km57.355, km58.115, km58.706 und km59.777) sowie Gurtnellen (km55.099, km55.796) eingetroffen. Nun kann ich aufgrund dieser massstäblichen Zeichnungen meine Variante überarbeiten und dann zum Hersteller senden.

Die nach den Originalplänen gestaltete Variante sieht nun so aus:

Diese wird nun als Vorschlag zu MicroScale gesandt und dann können wir wieder weitersehen

Es hat mir keine Ruhe gelassen - wie würde denn meine Variante auf einer Anlage aussehen? Es musste also ein Handmuster her, Zeichnung auf Holz übertragen und aussägen, damit eine Stellprobe auf meinem angefangenen Modul gemacht werden kann und kann sich durchaus sehen lassen - Lok's mit gehobenem Stromabnehmer (voll ausgefahren) und Gottardo-Panoramawagen gehen problemlos durch; die Signalkörbe dürfen sogar noch einige Millimeter tiefer hängen (damit auch Haupt- und Vorsignal Platz haben) und es sollte immer noch funktionieren.

- und das Resultat sieht nun folgendermassen aus:

Handmuster aus Holz

Nach einem Treffen mit dem Hersteller MicroScale sieht es nun so aus, dass ein Handmuster "meiner" Version hergestellt wird und dann zur Begutachtung zur Verfügung steht. Nun denn - ich bin gespannt! Sobald Neuigkeiten zu vermelden sind werde ich Dich informieren!

12/06/09

Detailplanung

Um die genauen Standorte, die Nummerierung und die Anzahl der Signale und Signalbrücken festzulegen habe ich nun 15 Signalbrücken aus Holz gemäss meinem Handmuster hergestellt. Diese wurden dann auf der Grundlage des Signalisationsvorschlages von MicroScale, den Gegebenheiten im Original (siehe Zugnummer 90523) und den Möglichkeiten auf der Anlage unter Berücksichtigung der minimalen Blocklängen auf der Anlage positioniert.

Signalisation auf der Strecke
Signalisation auf der Strecke
Dummy Signalbrücke
Dummy Signalbrücke

Gewisse Kompromisse wurden bewusst eingegangen, so sind aufgrund der verkürzten Streckenlängen einige Signale weggelassen worden, dafür wurden Signale, welche sich eigentlich im Kehrtunnel befinden, zum Tunneleingang hin verschoben. Ziel war es, eine korrekte und glaubhafte Anordnung der Signale zu erreichen.

05/18/12

Detailplanung zum Zweiten

Durch die intensive Beschäftigung mit der vorbildgetreuen Signalisation an der Gotthard-Nordrampe und den «neuen» Qdecodern haben sich doch noch einige Anpassungen ergeben. Basierend auf dem Original-SBB-Signalplan, den Führerstandsfahrten in Richtung Norden und Süden sowie vielen Photos wurden die genauen Signaltypen (Schirme, Anzahl Lampen, mögliche Signalbilder) und Signalbezeichnungen festgelegt.
Der SBB-Signalplan hat mir fast einen «Herzstillstand» gebracht: Der Spurwechsel nach Wassen in Richtung Süden habe ich gemäss Original SBB-Plan verkehrt herum erstellt - doch die Konsultation der Führerstandsfahrtvideos haben dann den Blutdruck wieder sinken lassen; der SBB-Plan ist falsch ;-) bzw. der Gleiswechsel wurde im Herbst 2009 (also kurz nach der Führerstandsfahrt) aus betrieblichen Gründen umgebaut.

So ist nun der «finale» Signalisationsplan fertig, welcher - soweit möglich und sinnvoll - Rücksicht auf die Vorbildsituation und die Gegebenheiten auf der Anlage nimmt und einen vertretbaren Kompromiss für mich darstellt.

06/09/12

Die Signalbrücken an der Nordrampe

sind nun definitiv fertig geplant. Vom Pfaffensprung bis Eggwald werden es 8 Signalbrücken und 2 Querjoche mit gesamthaft 24 Haupt-, 30 Vor- und 10 Hilfssignalen sein; von Eggwald bis Göschenen kommen nochmals 2 Signalbrücken dazu. An der Strecke sind bei den Spurwechseln und im Bahnhof Wassen  25 Zwergsignale platziert.

Die Detailzeichnungen der Signalbrücken zu obigem Schema sehen nun so aus:

Spurwechsel Pfaffensprung km 58.7
Spurwechsel Pfaffensprung km 58.1
Einfahrsignal Wassen km 61.0
Untere Wattingerbrücke km 60.7
Ausfahrsignale Wassen km 62.0 + 62.9
Einfahrsignale Wassen km 63.8
Strahllochtunnel / Viadukt km 64.1
Wärterhaus 23fs km 65.6
Spurwechsel Eggwald km 66.6
Wärterhaus 23is km 68.8
Einfahrsignal Göschenen km 69.8
 
Last Update: 10.04.2015, 08:00